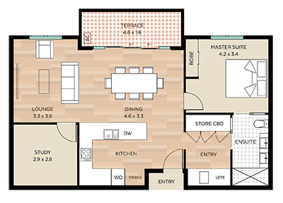
The beautifully appointed apartments at Martha Bay offer the perfect blend of space, style, and convenience—without compromise. Featuring a spacious one-bedroom layout with a built-in robe and a generous study/guest bedroom, this home is ideal for relaxed, low-maintenance living. The open-plan kitchen, living, and dining area is finished with quality craftsmanship and elegant touches throughout.
Enjoy the comfort of reverse cycle heating and cooling, along with practical features such as laundry facilities, secure parking, and ample storage. A private balcony adds a peaceful outdoor retreat, while well-positioned TV, internet, and multiple power points ensure modern connectivity. With a 24-hour emergency call system in place, this apartment offers both independence and peace of mind in a vibrant retirement community.

Download the floorplan.
Note: images are of a similar home with the same floorplan.
Our beautifully styled apartments are open for inspection, Monday - Friday 10am - 4pm.
To book a private tour, call our local sales specialist, Andy Gordon: 0458 603 047